Het Gebouw
Leiden (NL), 2013
17 March 2015 | News
Excursion Innovation in Housing and Care
Research | Social impulse of multimodal and public mixed use projects
"shared use of interior streets and meeting spaces offer the opportunity for social contact and cultural exchange"
Information
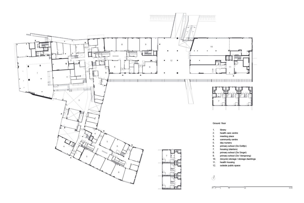
Het Gebouw started as a pilot project for the new lively neighbourhood De Kooi in the North of Leiden. Various social and community accommodations are gathered in a building that stimulates multiple use of space and reactivates the social life of the neighbourhood. Het Gebouw houses three primary schools, day nurseries, care organisations, a public library, community centre and sports facilities. But also apartments, housing for the elderly and mentally disabled. This makes Het Gebouw the first step into a new, vital and life cycle proof part of the city.
A central square lies at the heart of the plan. All the different elements of the program can be found in shops and niches surrounding it. For the design of the central square we used examples from the most beautiful ancient cities in the world. This lively meeting point will both be the heart of the neighborhood and house the community complex and is suitable for highly diverse events such as performances, film nights, political gatherings and neighbourhood parties.
Related News & Media Download PDFStatistics
| Name: | Het Gebouw |
| Location: | Arubapad 2, Leiden (NL) |
| Program: | three primary schools, preschool, sports facilities, multifunctional community centre, central square, restaurant, auditorium, public library, welfare centre, youth and family centre, general practitioner, local facilities, parking garage for 120 cars, bike parking, 50 life cycle proof appartments, 20 care homes for the demented, 14 care homes for the mentally disabled elderly, 18 school units / starter homes, roof gardens |
| Surface area: | 26,150 m2 gfa |
| Assignment: | urban development design, schematic design, design development, specifications, detail drawings and aesthetic direction |
| Period: | 2006-2013 |
| Status: | Built |
| Client: | Municipality of Leiden, Housing Corporation Ons Doel |
| Awards: | Nomination Leidse Architecture Prize 2013 |
Credits
| VenhoevenCS: | Ton Venhoeven, Danny Esselman, Jos-Willem van Oorschot, Arjen Zaal, Cécilia Gross, Arjan Pot, Eelco Bergman, Kees Plomp, Wouter de Haas, Roland Herpel, Tanja Djordjevic, Urs Hasenberg, Niels Boswinkel, Tim Habraken, Gabriël Boutsema |
| Main contractor: | Bot Bouw |
| Structural engineer: | Sweco (Formerly Grontmij) |
| MEP: | Deerns installatieadvies, Kuijpers (E-installations), BRI (W-installations), Kone liften |
| Building physics: | LBP SIGHT |
| Cost consultant: | Arcadis Financial Engineers |
| Images: | Ronald Tilleman |