Het Platform
Utrecht (NL), 2020
9 February 2021 | Publications
Envisioning the future of our cities: from Le Corbusier to VenhoevenCS on ArchDaily
Information
Het Platform in Utrecht is a mixed-use community building for living, working and playing. The building has been designed as a MicroCity; thanks to a mix of complementary functions and a prime location near a public transport hub, it aims to be mostly autarkic. MicroCity is an innovative concept for buildings and neighborhoods. By offering a mix of complementary functions it creates opportunities to enhance the post-carbon circular economy. By also reducing mobility needs, the MicroCity concept contributes strongly to cities at large becoming truly sustainable.
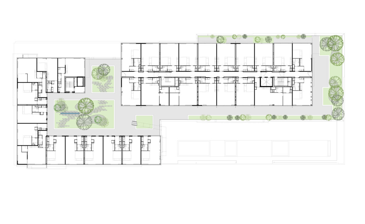
Het Platform is constructed on top of the Uithoflijn tram and bus terminal, directly adjacent to the station’s square. It interacts in such a natural way with surrounding buildings in the area, that it almost seems the building ‘grew’ into its place. The component parts of Het Platform are situated and stacked in a way that generates a variety of attractive public and collective outdoor spaces for the station area. One can find an orchard, a semi-open court, a super loggia, a semi-public passage and an ‘urban living room’, the sheltered space under the large cantilever of the 8th floor.
Het Platform is like a natural landscape within the city. With a wide variety of plants and trees in its façade planters and four different roof gardens, the building strengthens local biodiversity. The roof gardens are essential components of the building program. These gardens offer fantastic views over the station area and the historical city center. Residents and visitors can feel both at home and part of the vibrant city of Utrecht. At this scale, it is probably the first nature-inclusive residential building in the Netherlands that has been realized.
Each apartment has different views towards the city and outdoor spaces in and around this complex. The various terraces and gardens are easily accessible via corridors, stairways and connecting bridges. The layered facade with a composition of sliding windows, balconies, terraces and greenery, invites residents to enjoy all opportunities of outdoor-living. Passers-by are also invited to enjoy these spaces. A public route runs straight through the building up to the station square. A monumental indoor passage halfway gives access to the ‘urban living room’.
As Het Platform is constructed on top of the new Uithoflijn station, the total program of more than 18,000 m2 has a minimum footprint of only 170 m2 at ground level. To solve the many engineering challenges an ingenious custom-made lightweight steel construction with 3D trusses was developed. In addition to a residential program of 200 rental homes, the building accommodates collective facilities such as a restaurant, commercial spaces, a bicycle parking and many “sticky spaces” for social encounters.
Related News & Media Request presskitStatistics
| Name: | Het Platform |
| Location: | Moreelsehoek |
| Program: | 15.000 m2 gfa living: 201 apartments and communal gardens. Around 4.000 m2 facilities, a.o. a foodcourt with public garden terrace, fitness, e-sports training facilities and bicycle parking. |
| Surface area: | 18.500 m2 gfa |
| Assignment: | Competition design, concept design, schematic design, design development, construction documents, construction administration |
| Period: | 2015-2020 |
| Status: | Built |
| Client: | ABC Vastgoed, Municipality of Utrecht |
| Awards: | Roof of the Year Award 2019 |
| Publications: | ArchDaily De Architect (NL) Magazine Stationslocaties 2020-2021 (NL) Architizer Archello |
Credits
| VenhoevenCS: | Ton Venhoeven, Cécilia Gross, Jos-WIllem van Oorschot, Danny Esselman, Manfred Wansink, Arjen Zaal, Piotr Gierek, Tjeerd Hellinga, Nerea Sáenz Compañón, Lorenzo de Navascués Y Lauzet, Maria Ángeles Reinares San Martin, Max Fleer, Eliza Mante, Mai Henriksen, Louis van Wamel, Arjan Pot, Peter Rugebregt, Robin Boenning, Natasja Cvetkovic |
| Developer: | ABC Vastgoed |
| Landscape architect: | Studio LandLab |
| Main contractor: | Bouw21 |
| Structural engineer: | IMd Raadgevende Ingenieurs |
| MEP: | Techniplan Adviseurs |
| Building physics: | Bureau Bouwfysica |
| Project management: | abcnova |
| Cost consultant: | IGG Bouweconomie |
| Exploitation / operation: | CBRE Global Investors |
| Images: | Ossip van Duivenbode (photos), A2 Studio (renders), Xinix Films (video) |